Auftrag:
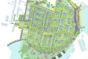
Planungswerkstatt »Südliche Werdervorstadt am Schweriner See« Städtebauliches Gesamtkonzept zur Entwicklung des ehemaligen Polizeigeländes und der Waisengärten in der Werdervorstadt Schwerin
Auftraggeber:
EGS Entwicklungsgesellschaft mbH / Stadt Schwerin
Planungszeit:
2011
Planungsleistungen:
Entwurfsplan, Lageplan, Geländeschnitt, Strukturdarstellung, Mustergrundrisse, Ansichten, Visualisierungen des Außenraums, Arbeitsmodell









